Aller au contenu
120 rue Roland Garros 29490 Guipavas
06 80 03 17 79
  • Accueil
  • Missions
  • Maisons individuelles
  • Logements collectifs
  • Bâtiments d’activités
  • Équipements publics
  • Actualités
  • Contact
Equinoxe

Rénovation et construction de maisons individuelles à Brest dans le Finistère

Nous vous accompagnons pour la construction d’une maison neuve ou la rénovation de votre bien. Équinoxe Architecte propose un accompagnement pour les particuliers qui souhaitent faire construire, rénover ou réaliser une extension d’une maison individuelle dans le Finistère : Brest, Quimper, Landerneau, Carhaix, Plouzané, Douarnenez, etc. Nous sommes à l’écoute de vos envies pour vous construire une maison unique à votre goût.

20230220 134336 bis - Maisons individuelles - Quimper Brest
3

Construction de 5 maisons individuelles – Bohars

20230220 143807 - Maisons individuelles - Quimper Brest
IMG 2801 - Maisons individuelles - Quimper Brest
Voir plus
IMG 2542 - Maisons individuelles - Quimper Brest
2

Construction d’une maison individuelle – Saint-Jean Du Doigt

IMG 2578 - Maisons individuelles - Quimper Brest
Voir plus
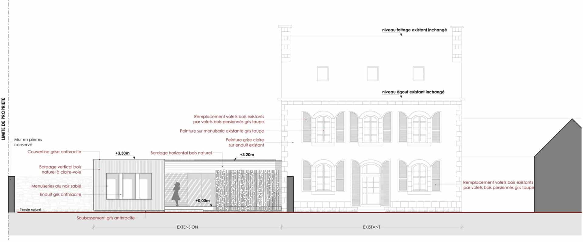
Extension dune maison Carhaix 1 - Maisons individuelles - Quimper Brest
2

Extension d’une maison – Carhaix

Extension dune maison Carhaix 2 - Maisons individuelles - Quimper Brest
Voir plus
EXTENS1 - Maisons individuelles - Quimper Brest
1

Extension d’une maison individuelle – Le Relecq-Kerhuon

Voir plus
CONSTR1 1 - Maisons individuelles - Quimper Brest
1

Construction d’une maison individuelle – Poullan-sur-Mer

Voir plus
CONSTR1 - Maisons individuelles - Quimper Brest
4

Construction d’une maison individuelle – Le Conquet

CONSTR2 1 - Maisons individuelles - Quimper Brest
CONSTR3 - Maisons individuelles - Quimper Brest
CONSTR4 - Maisons individuelles - Quimper Brest
Voir plus
IMG 2343 - Maisons individuelles - Quimper Brest
5

Construction d’une maison individuelle – Brest

IMG 2338 - Maisons individuelles - Quimper Brest
Construction dune maison individuelle Brest 1 - Maisons individuelles - Quimper Brest
Construction dune maison individuelle Brest 2 - Maisons individuelles - Quimper Brest
Voir plus
Extension dune maison individuelle Landunvez 1 - Maisons individuelles - Quimper Brest
4

Extension d’une maison individuelle – Landunvez

Extension dune maison individuelle Landunvez 2 - Maisons individuelles - Quimper Brest
Extension dune maison individuelle Landunvez 3 - Maisons individuelles - Quimper Brest
Extension dune maison individuelle Landunvez 4 - Maisons individuelles - Quimper Brest
Voir plus
CONSTR1 - Maisons individuelles - Quimper Brest
3

Construction de 6 maisons individuelles – Pleyber-Christ

CONSTR2 1 - Maisons individuelles - Quimper Brest
CONSTR3 1 - Maisons individuelles - Quimper Brest
Voir plus
Renovation dune maison individuelle Plouzane 1 - Maisons individuelles - Quimper Brest
3

Rénovation d’une maison individuelle – Plouzané

Renovation dune maison individuelle Plouzane 2 - Maisons individuelles - Quimper Brest
Renovation dune maison individuelle Plouzane 3 - Maisons individuelles - Quimper Brest
Voir plus
Extension bois Plouneventer 1 - Maisons individuelles - Quimper Brest
2

Extension bois – Plounéventer

Extension bois Plouneventer 2 - Maisons individuelles - Quimper Brest
Voir plus
Image 03 000 - Maisons individuelles - Quimper Brest

Votre projet de construction de maison individuelle

Nous nous adaptons à vos demandes en fonction du lieu défini, de votre mode d’habitation, de vos usages et de votre budget. Ainsi, nous vous proposons la solution la plus adaptée à votre projet de vie. Volumétrie, structures, matériaux techniques de construction et implantation, le choix des possibles est large (maçonnerie traditionnelle, ossature bois, etc.). Chaque projet est unique et nous nous assurons qu’ils correspondent à vos attentes.

La rénovation et extension de votre logement individuel

L’agence Équinoxe Architecte réalise la rénovation et l’extension de votre maison pour bénéficier d’un nouvel espace de vie. De plus, nous concevons la rénovation de votre habitat avec de la restructuration ou de l’isolation pour un meilleur confort au quotidien. Nous améliorons également la performance énergétique de votre maison selon vos besoins. Par ailleurs, notre architecte se forme à la rénovation du bâti ancien en maçonnerie de pierre et l’utilisation de matériaux biosourcés comme les bétons de chanvre.

Image 04 - Maisons individuelles - Quimper Brest

Un accompagnement complet

La réalisation d’un tel projet comporte de nombreuses questions et des démarches administratives. Nous vous aiderons dans un premier temps avec une étude de faisabilité pour évaluer la viabilité de votre projet (études préliminaires). Nous vous accompagnons également pour les démarches administratives afin d’obtenir votre permis de construire. Pour finir, nous nous assurons également du suivi des travaux et du contrôle du chantier du point de vue architectural, délais et budget. L’ensemble de ces missions constituent la mission complète.

Votre architecte de maison individuelle à Brest

Équinoxe Architecte, situé au 120 rue de Roland Garros à Guipavas, est composé d’architecte expérimenté dans la construction de logements individuels. Nous intervenons à Brest et dans tout le Finistère pour vos projets de rénovation et de construction.

Vous avez des questions sur votre projet ? N’hésitez pas à nous contacter pour nous en faire part.

Cliquez ici
120 rue Roland Garros 29490 Guipavas
06 80 03 17 79
  • Mentions légales
  • Politique de cookies
  • Déclaration de confidentialité
  • Mentions légales
  • Politique de cookies
  • Déclaration de confidentialité

Contactez-nous

    Déclaration de confidentialité

Développé par e-Ness, création de site internet et agence Web

Gérer le consentement aux cookies
Pour offrir les meilleures expériences, nous utilisons des technologies telles que les cookies pour stocker et/ou accéder aux informations des appareils. Le fait de consentir à ces technologies nous permettra de traiter des données telles que le comportement de navigation ou les ID uniques sur ce site. Le fait de ne pas consentir ou de retirer son consentement peut avoir un effet négatif sur certaines caractéristiques et fonctions.
Fonctionnel Toujours activé
Le stockage ou l’accès technique est strictement nécessaire dans la finalité d’intérêt légitime de permettre l’utilisation d’un service spécifique explicitement demandé par l’abonné ou l’utilisateur, ou dans le seul but d’effectuer la transmission d’une communication sur un réseau de communications électroniques.
Préférences
Le stockage ou l’accès technique est nécessaire dans la finalité d’intérêt légitime de stocker des préférences qui ne sont pas demandées par l’abonné ou l’utilisateur.
Statistiques
Le stockage ou l’accès technique qui est utilisé exclusivement à des fins statistiques. Le stockage ou l’accès technique qui est utilisé exclusivement dans des finalités statistiques anonymes. En l’absence d’une assignation à comparaître, d’une conformité volontaire de la part de votre fournisseur d’accès à internet ou d’enregistrements supplémentaires provenant d’une tierce partie, les informations stockées ou extraites à cette seule fin ne peuvent généralement pas être utilisées pour vous identifier.
Marketing
Le stockage ou l’accès technique est nécessaire pour créer des profils d’utilisateurs afin d’envoyer des publicités, ou pour suivre l’utilisateur sur un site web ou sur plusieurs sites web ayant des finalités marketing similaires.
Gérer les options Gérer les services Gérer {vendor_count} fournisseurs En savoir plus sur ces finalités
Voir les préférences
{title} {title} {title}
  • Accueil
  • Missions
  • Maisons individuelles
  • Logements collectifs
  • Bâtiments d’activités
  • Équipements publics
  • Actualités
  • Contact
  • Accueil
  • Missions
  • Maisons individuelles
  • Logements collectifs
  • Bâtiments d’activités
  • Équipements publics
  • Actualités
  • Contact